Дизайн-Проект №3
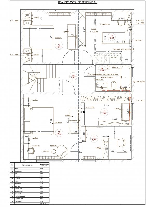
Дом площадью 130м2 проектировался для молодой семьи с ребенком. В современных реалиях современным родителям зачастую необходимо место для удаленной работы. Поэтому в проекте предусмотрено два небольших рабочих кабинета. Первый этаж представляет собой открытое пространство гостиной и кухни, разделенное речной перегородкой. "Тема" реек прослеживается на протяжении всего проекта, дабы поддержать тему загородного дома и природы в проекте используется много текстур дерева и камня-натуральных природных материалов.






























